PROJETS
CONTACT
PRESSE
De Bagatelle Architecture
PROJETS
CONTACT
PRESSE

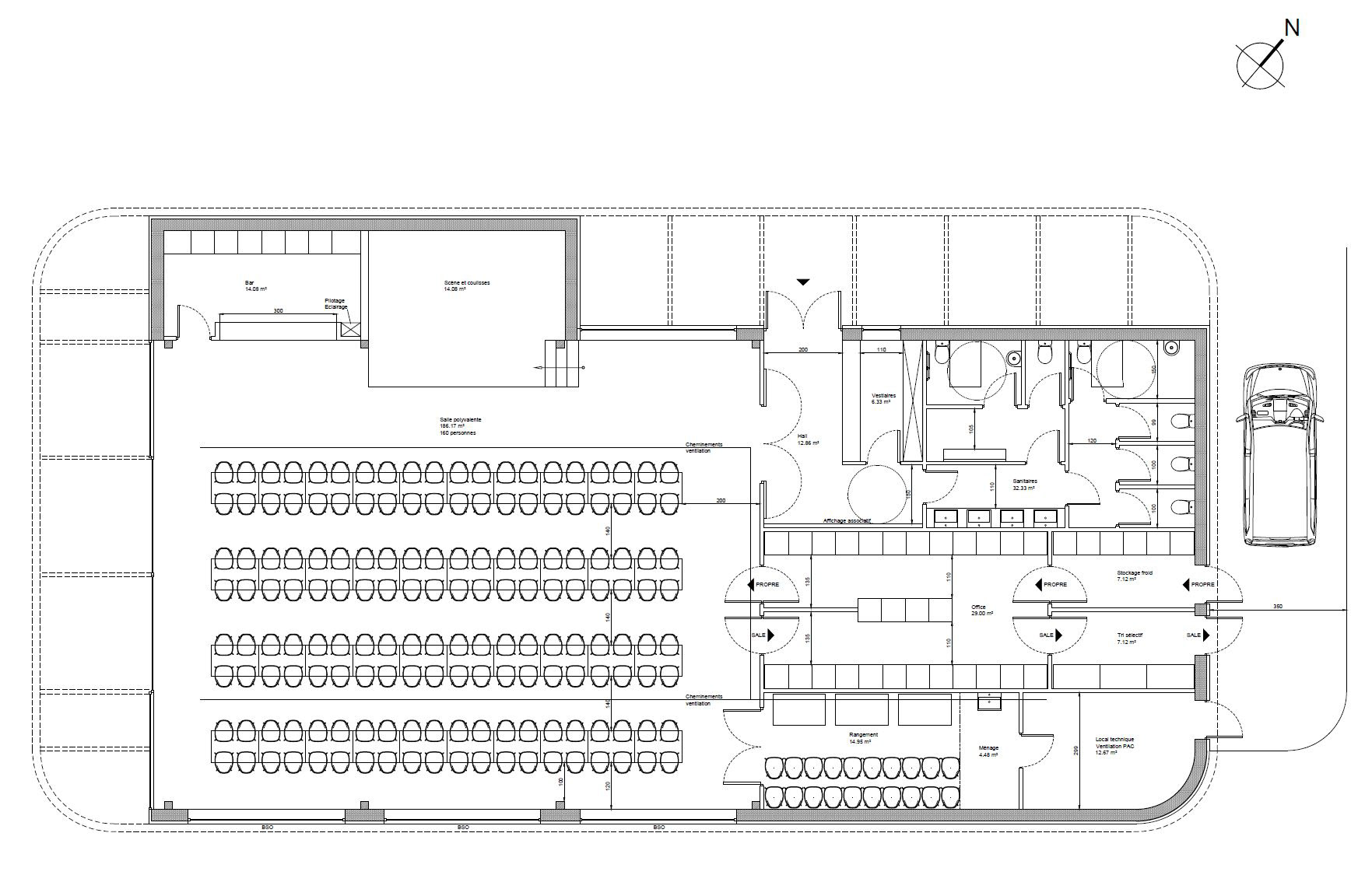
Salle des fêtes "Le Terrier" à Dommartin (25)

Mission complète pour la réhabilitation complète de la salle des fêtes "Le Terrier" à Dommartin (25). APD en cours Economie : Broissiat-Dequeker - Fluides : Lazzarotto - Structure : CVF Maîtrise d'Ouvrage : Commune de Dommartin

De Bagatelle Architecture - SARL d'architecture au capital de 6000 € - Ordre National des Architectes n° S20264 - 2025 - Tous droits réservés

En poursuivant sur ce site, vous acceptez l'utilisation de cookies. Accepter Refuser